- Woonoppervlakte
- Circa 146 m²
- Perceeloppervlakte
- Circa 225 m²
- Bouwjaar
- Gebouwd in 2010
- Aantal kamers
- 5 kamers (3 slaapkamers)
Kenmerken
Bouwjaar: 2010
Woonoppervlakte: 146 m²
Inhoud: 552 m³
Perceel: 225 m²
Extra pluspunten? Die zijn er genoeg:
Sfeervolle woning met optimale lichtinval
Airco in woonkamer
Moderne badkamer en keuken (2022)
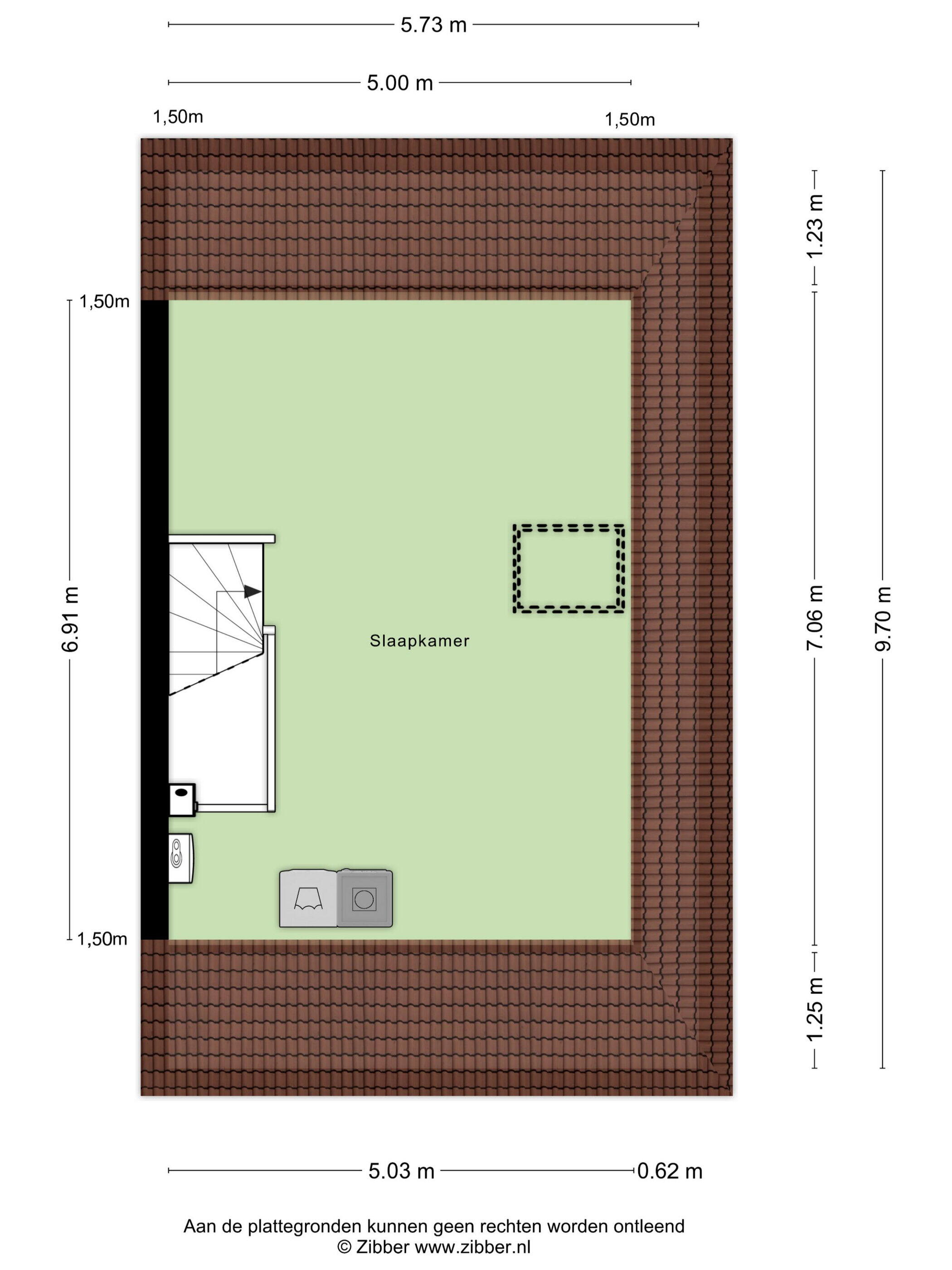
Brede woning (maar liefst ca. 5740 mm binnenmaat)
Nokhoogte (maar liefst ca. 4900 mm) geeft meer ruimte en comfort op de zolder
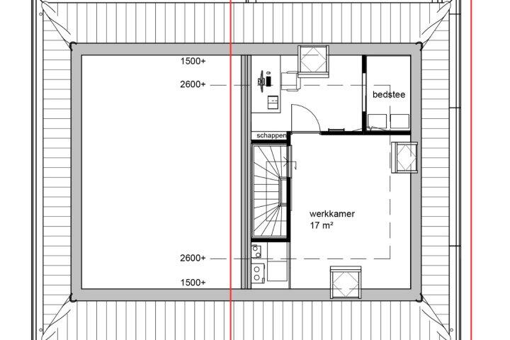
Multifunctionele tweede verdieping
Fijne tuin met veel privacy
13 zonnepanelen voor lage energielasten
Vernieuwde meterkast
Volledig geïsoleerd, energielabel A
Indeling:
Begane grond:
Via de entree met toiletruimte, meterkast en trapopgang bereik je de royale, tuingerichte woonkamer met een fraaie pvc-vloer. Aan de voorzijde van de woning bevindt zich de in 2022 vernieuwde, matzwarte leefkeuken, uitgevoerd in een praktische L-opstelling. De keuken biedt veel kastruimte, is uitgerust met diverse moderne inbouwapparatuur en vormt een echte eyecatcher. Dankzij de grote raampartijen aan zowel de voor- als zijkant is dit een heerlijk lichte en uitnodigende ruimte.
Eerste verdieping:
Op de eerste verdieping bevinden zich drie ruime slaapkamers en een moderne, recent vernieuwde badkamer. De badkamer is compleet uitgevoerd met een ligbad, separate douche en toilet en straalt comfort en luxe uit — een fijne plek om de dag ontspannen te beginnen of juist af te sluiten. De gehele verdieping is voorzien van een laminaatvloer en de wanden zijn netjes afgewerkt.
De tweede verdieping is een royale multifunctionele ruimte met een indrukwekkende nokhoogte van ca. 4,90 meter. Ideaal om extra (slaap)kamers, een werkruimte of hobbykamer te realiseren. Daarnaast bevindt zich hier ook de opstelplaats voor Cv-ketel (Intergas, 2010), wasmachine, droger en mechanische ventilatie box en is de ruimte voorzien van dakvenster met verduisteringsscherm, nette laminaatvloer en diepe knieschotten voor bergruimte.
Ook buiten is het genieten.
De achtertuin is groen, sfeervol en uitnodigend aangelegd en vormt een fijne verlenging van de woning. Het gezellige terras nodigt uit tot ontspannen momenten, terwijl het gazon en het omliggende groen zorgen voor een rustige, natuurlijke uitstraling. Dankzij de volledig omsloten ligging, de houten erfafscheidingen geniet je hier van veel privacy en vrijwel geen inkijk. Bovendien biedt het gazon een fijne plek voor kinderen om te spelen. Achter in de tuin staat een praktische berging, ideaal voor fietsen en tuingereedschap.
Kortom: een instapklare, energiezuinige en ruime gezinswoning op een fantastische locatie!
Multifunctionele tweede verdieping
Overdracht
- Vraagprijs
- € 637.500 k.k.
- Status
- Beschikbaar
- Aanvaarding
- In overleg
Bouw
- Object type
- Eengezinswoning, 2 onder 1 kapwoning
- Soort bouw
- Bestaande bouw
- Bouwjaar
- 2010
- Soort dak
- Schilddak bedekt met pannen
Oppervlakte en inhoud
- Woonoppervlakte
- 146 m²
- Perceeloppervlakte
- 225 m²
- Inhoud
- 552 m³
- Externe bergruimte
- 7 m²
Indeling
- Aantal kamers
- 5 kamers (3 slaapkamers)
- Aantal badkamers
- 1 badkamer
- Badkamervoorzieningen
- Ligbad, toilet, douche, wastafelmeubel
- Aantal woonlagen
- 3 woonlagen
- Voorzieningen
- Airconditioning, zonnepanelen
Energie
- Energielabel
- A
- Energielabel registratie
- 31-12-2020
- Isolatie
- Dakisolatie, muurisolatie, vloerisolatie, dubbel glas
- Verwarming
- Cv-ketel
- Warm water
- Cv-ketel
- Cv ketel
- Intergas combiketel gas gestookt uit 2010 (eigendom)
Buitenruimte
- Ligging
- In woonwijk
- Tuin
- Achtertuin, voortuin, zijtuin
- Afmetingen achtertuin
- 98 m² (12.15 meter diep en 8.1 meter breed)
- ligging tuin
- Gelegen op het zuidoosten en bereikbaar via achterom
Bergruimte
- Schuur / berging
- Vrijstaande houten berging
- Voorzieningen
- Voorzien van elektra
Garage
- Soort garage
- Geen garage
Parkeergelegenheid
- Soort parkeergelegenheid
- Op eigen terrein
Indicatie hypotheeklasten
Eigen inleg:
Spaargeld / overwaarde
Rente:
Laagste 10-jaars rente
Laagste 10-jaars rente
2,78% - Centraal Beheer - NHG
3,04% - Centraal Beheer - 80%
Laagste 20-jaars rente
3,29% - Centraal Beheer - NHG
3,52% - Centraal Beheer - 80%
Laagste 30-jaars rente
3,41% - Centraal Beheer - NHG
3,7% - Argenta - 80%
Hypotheek:
Bruto maandlasten: € 0 p/m
Netto maandlasten: € 0 p/m
Hoe berekenen we dit?
Het rentepercentage is gebaseerd op de laagste 10 jaars vaste rente voor één hypotheekdeel. De vermelde rente (3.04% zonder NHG) is gecontroleerd op 14-04-2026. Deze berekening is gebaseerd op een annuïteitenhypotheek die volledig wordt afgelost, waarbij de maandlasten gedurende de gehele looptijd gelijk blijven. De werkelijke rente en netto maandlasten kunnen variëren, afhankelijk van uw persoonlijke situatie en de hypotheekverstrekker. Raadpleeg een financieel adviseur voor een nauwkeurige berekening en advies. Aan deze berekening kunnen geen rechten worden ontleend; het dient enkel als indicatie.
Documentatie
Kadastrale kaart
Leefomgeving
WOZ waarderapport
BAG uittreksel
Brochure
Plattegronden PDF
Bezoek onze website
Inloggen move.nl
Bezichtiging
Bod uitbrengen
Waardebepaling
Zoekopdracht
Alles downloaden
Zonnegrenzen bekijken
Inwoners in Wijchen
Cijfers voor postcodegebied 6603
- Totaal aantal inwoners
- 36260 inwoners
- Mannen
- 49%
- Vrouwen
- 51%
Inwoners in Wijchen
Cijfers voor postcodegebied 6603
- tot 15 jaar
- 12%
- 15 tot 25 jaar
- 13%
- 25 tot 35 jaar
- 19%
- 45 tot 65 jaar
- 34%
- 65 en ouder
- 21.7%
Huishoudens in Wijchen
Cijfers voor postcodegebied 6603
- Eenpersoons zonder kinderen
- 27%
- Meerpersoons zonder kinderen
- 32%
- Huishoudens zonder kinderen
- 59%
Huishoudens in Wijchen
Cijfers voor postcodegebied 6603
- Huishoudens met één kind
- 20%
- Huishoudens met meerdere kinderen
- 21%
- Huishoudens met kinderen
- 41%
Woningen in Wijchen
Cijfers voor postcodegebied 6603
- Woningen voor 1945
- 12%
- Woningen tussen 1945 en 1965
- 11%
- Woningen tussen 1965 en 1975
- 13%
- Woningen tussen 1975 en 1985
- 17%
- Woningen tussen 1985 en 1995
- 6%
Woningen in Wijchen
Cijfers voor postcodegebied 6603
- Woningen tussen 1995 en 2005
- 6%
- Woningen tussen 2005 en 2015
- 27%
- Woningen na 2015
- 9%
- Huurwoningen
- 40%
- Koopwoningen
- 60%
Overige in Wijchen
Cijfers voor postcodegebied 6603
- Gemiddelde WOZ waarde
- € 309.000,-
- Personen onder de 65 met uitkering
- Niet beschikbaar
Overige in Wijchen
Cijfers voor postcodegebied 6603
- Adressen per km²
- 509
- Stedelijkheid (schaal 1 op 5)
- 40%
Korte feiten over Wijchen
Wijchen is de hoofdplaats van de gemeente Wijchen in de Nederlandse provincie Gelderland. De plaats is met 36.625 inwoners (op 1 januari 2021) de grootste in de gelijknamige gemeente van bijna 41.000 inwoners. Wijchen ligt aan de zuidgrens van Gelderland, tegen Noord-Brabant aan.
Indien u vragen heeft of u wilt een bezichtiging inplannen, dan kunt u gebruik maken van het formulier hiernaast. Er zal daarna op korte termijn contact met u worden opgenomen.
Kasteellaan 23
6602 DB, Wijchen
024 64 90100 binnendienst@driessenmakelaardij.nl www.driessenmakelaardij.nlContact opnemen
Al 40 jaar uw huismakelaar
Ondernemende makelaar met ambitie
U wilt een huis kopen, verkopen of laten taxeren. Het liefst schakelt u een betrouwbare makelaar in bij u in de buurt. Maar hoe vindt u precies de makelaar die het best bij u past? Het aanbod is al zo groot.
Driessen Makelaardij maakt uw keuze een stuk gemakkelijker. Hoe? Allereerst zijn we al veertig jaar een begrip in de regio. Met een kantoor in Wijchen en in Nijmegen kennen wij de lokale huizenmarkt op ons duimpje. En niet onbelangrijk: de huizenmarkt kent ons. ‘Want vaak is de eerste stap van een woningzoeker de stap naar ons kantoor.’ Hierdoor weten wij vraag en aanbod snel bij elkaar te brengen en perfect in te spelen op de wensen van klanten en potentiële klanten. Bovendien zijn we aangesloten bij de NVM, de grootste brancheorganisatie in de makelaardij. Onze mensen zijn dus uitstekend in staat het hele aan- en verkooptraject van begin tot eind professioneel te begeleiden.
Uw ambitie is onze ambitie. Dat wil zeggen: u verwacht van ons dat we tot het uiterste gaan u die kwaliteit te bieden waarom we al zo lang bekend staan. Daar mag u ons aan houden!
Nieuwste reviews
-
Homberg 1301
Pim Driessen en zijn team hebben ons uitstekend begeleid bij het vinden en kopen van onze nieuwe woning en verkopen van onze oude woning. Ze...
-
Flamingostraat 22
Goede begeleiding, en je kunt altijd met tussentijdse vragen terecht.Ook de verkoop/koop begeleiding, naar kopers en verkopers verliep heel...
-
Kerkstraat 3
Bijzonder vriendelijk, attent en deskundig. Persoonlijke benadering en ook afstemming en maatwerk op de klant. Dit is wat een verkoper van e...